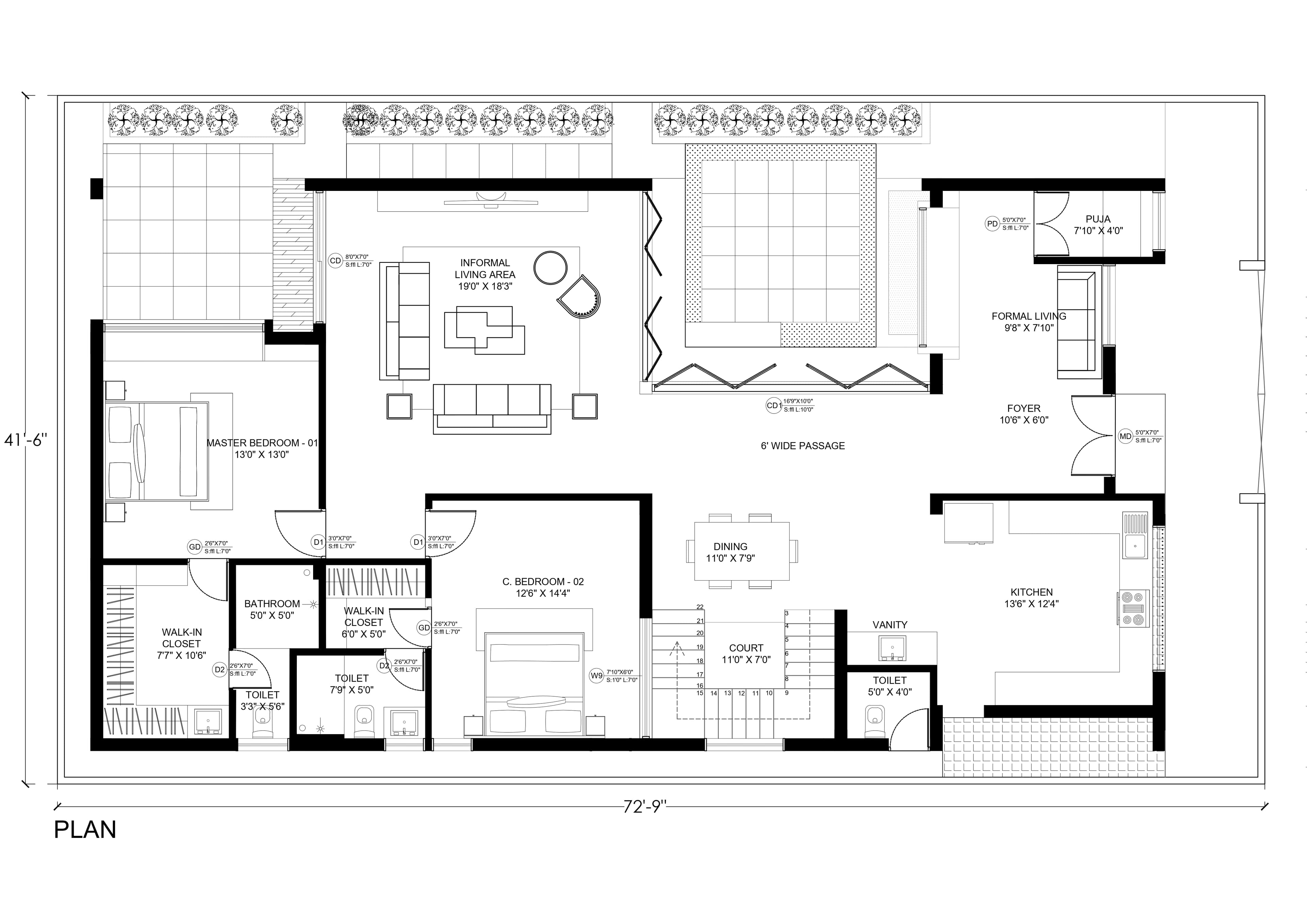
Courtyard House
2023|Nalgonda|370 SQD
Nestled deep in the mountains, this retreat offers serenity and panoramic forest views. The design emphasizes harmony with the environment through timber construction, elevated platforms, and glass-enclosed living areas.







